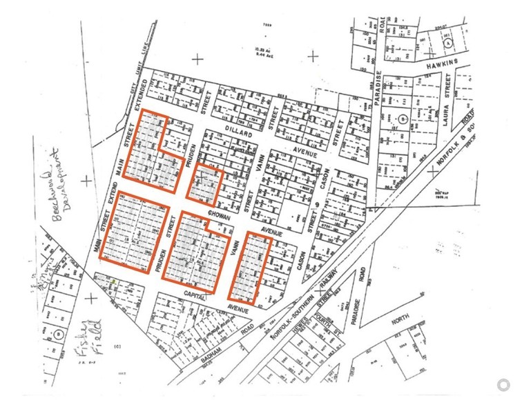
40+ Buildable Single Family Lots
ג€To Be Auctioned In Its Entiretyג€
ג€¢ 5.5 Acres with a 5,000 sq.ft. lot min.
ג€¢ Inside Edenton City Limits
ג€¢ Zoned R5
ג€¢ Access to City Water & Sewer
LIVE ON-SITE AUCTION
Begins: 06/22/17 at 12:30 PM EDT
Ends: 06/22/17 at 2:30 PM EDT
Location: Edenton Heights, Off of Dillard Avenue, Edenton, NC 27932











