Real Estate Auction

Real Estate Auction

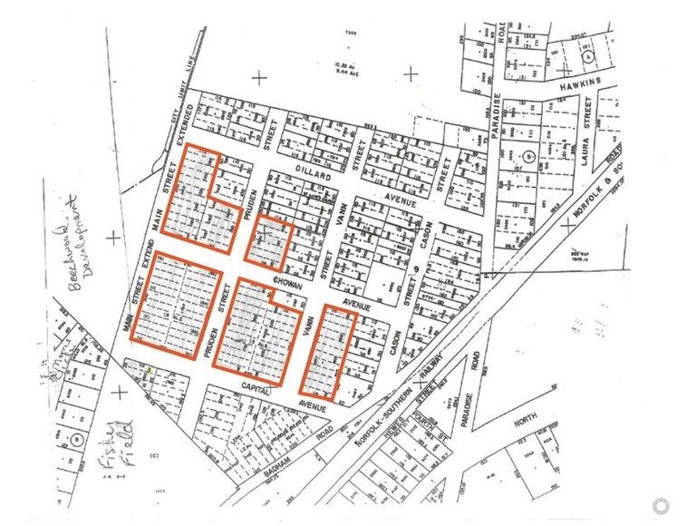
  BUY IT NOW! Contact Mike@atlanticremarketing.com "To Be Auctioned In Its Entirety" 40+ Buildable Single Family Lots 5.5 Acres with a 5,000 sq. ft. lot min. Inside Edenton City Limits Zoned R5 Access to City Water & Sewer Documents

       

      BUY IT NOW!

      Contact Mike@atlanticremarketing.com

      "To Be Auctioned In Its Entirety"

      40+ Buildable Single Family Lots

      • 5.5 Acres with a 5,000 sq. ft. lot min.
      • Inside Edenton City Limits
      • Zoned R5
      • Access to City Water & Sewer
      • Documents